|
Ä R Z T E H A U S in Neuss an der Rennbahn
Für eine Gemeinschaft von Ärzten sollte auf einem Grundstück unmittelbar an der Rennbahn und der Hammer Landstraße in Neuss ein medizinisches Versorgungszentrum entstehen. Das Gebäude sollte sich die Exponiertheit des Grundstückes zunutze machen, und durch eine hochwertige Architektursprache und eine klare Selbstaussage hervorheben.
B A U D A T E N
Geschossigkeit 6 + Staffel BGF (a) 3.880 m² reine Baukosten ca. € 5,5 mio Konstruktion Stahlbetonskelett Fassade Aluminium Eloxal Technik Thermoaktivdecken |
|
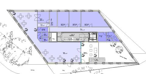
S T Ä D T E B A U
Bei dem Grundstück handelt es sich um ein Restgrundstück in der Westkurve der Rennbahn. In Unmittelbarer Nähe schließt sich die Planung des neuen Rennbahnhauses an. Im Zuschnitt des Grundstücks und in der Höhenlage liegen gleichzeitig Schwierigkeiten und Chancen für das Haus.
Einerseits ist die optische Präsenz mitten im Neusser Stadtzentrum, an einer der Hauptverkehrsadern, unbestreitlich. Auch der herrliche Ausblick auf den zukünftig geplanten neuen Rennbahnpark ist einzigartig. Andererseits verlangte die Geometrie des Grundstücks nach einer ungewöhnlichen Gebäudeform und die Höhenlage (-5m unter Straßenniveau) nach einer besonderen Lösung für die Zugänglichkeit.
Letztendlich haben all diese Anforderungen zur Mehrung interessanter Besonderheiten am Gebäude geführt. |
|
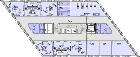
F A S S A D E | M A T E R I A L I T Ä T
Das komplette Gebäude ist auf einem 135cm– Raster aufgebaut. Ebenso die Fassade, auch wenn die gewählte Gestaltung der Fassade das Raster bewusst zerstören will.
Der unregelmäßige Wechsel zwischen geschlossenen und transparenten Bereichen und ein besonderer Umgang mit der Laibung ermöglichen dies.
Die Fensteranordnung und die Anordnung der geschlossenen Flächen leitet sich aus der inneren Nutzung ab. Labore, Operationssäle, Büros und sonstige spezifische Räume für ein medizinisches Gebäude sind verschiedenartig genug, um ein abwechslungsreiches Fassadenbild zu gestalten.
Die einseitig schräggestellten Fensterlaibungen erhalten ein andersfarbiges Eloxal. Sie fassen Geschosse zu Paketen zusammen und richten diese wechselseitig in verschiedene Richtungen aus. |



