|
A L T E N W O H N A N L A G E
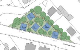
Im Januar 2010 erstellten wir für einen privaten Investor eine Entwurfsstudie für ein Altenwohnheim in Wassenberg. Der wichtigste Beweggrund bei der Konzeptfindung war die Schaffung von möglichst großer Lebens– und Aufenthaltsqualität auf der Anlage. Der gewählte Ansatz, kleine Wohngemeinschaften in einen stark durchgrünten Park zu integrieren, leistete dies unserer Ansicht nach am besten. Zwar wäre eine wesentlich höhere bauliche Verdichtung auf dem Grundstück möglich gewesen, aber nur zum Ungunsten der Wohnqualität. Die Wohnhäuser sind alle baugleich. Sie beherbergen vier Wohneinheiten und im Erdgeschoss Gemeinschaftsflächen und konzeptbezogenen Einzelhandel zur Eigenversorgung der alten Menschen.
B A U D A T E N Geschossigkeit 3 , KG BGF (a) ca. 5,500 m² reine Baukosten ca. € 6,2 mio Konstruktion als konventioneller Mauerwerksbau mit Stahlbetondecken. Fenster Aluminium natur mit Wärmeschutzverglasung. Fassade Holz, Sonnenschutz Holzrollos vor Veranden.
|


