|
G E S C H Ä F T S H A U S in Kaarst
Im Januar 2008 entwickelten wir für einen Düsseldorfer Privatinvestor ein Bürogebäude mit Restaurants und Butiken in den unteren Etagen. Die unter dem Haus zu errichtende Tiefgarage, erhält eine Anbindung an die städtische Quartiersgarage, und bildet so eine öffentliche Einfahrt in Diese. Die Gebäudekubatur leitet sich von der Form des Grundstückes ab. Die beiden unteren Geschosse erhalten eine runde Form, um den Personenfluss zwischen Maubisstrasse und dahinter liegendem Maubishof zu führen.
B A U D A T E N Geschossigkeit IV + Staffel , KG | TG BGF (oi + ui) 3.400 m² Baukosten ca. € 4,5 mio Konstruktion Stahlbetonskelett Fassade Aluminium , Glas Leistungsphasen LP 1 + 2 HOAI |
|
F L E X I B I L I T Ä T
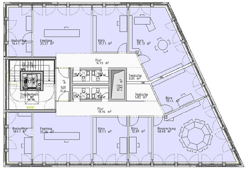
Das Grundriss-Layout ist auf eine maximale Ausbeute vermietbarer Flächen nach GIF ausgelegt. Pro Etage sind zwei Mieteinheiten organisierbar. Bei nur einer Mieteinheit pro Etage entsteht ein kompletter Umlauf um die in der Dunkelzone gelegenen Kernflächen. Das Treppenhaus mit Aufzug ist zu der bereits bestehenden Anschluss-Bebauung hin orientiert. Die Fassade und der Innenausbau basieren auf einem Ausbauraster von 135 cm. In jeder Fassadenachse ist ein Trennwandanschluss an die Fassade möglich. |
|
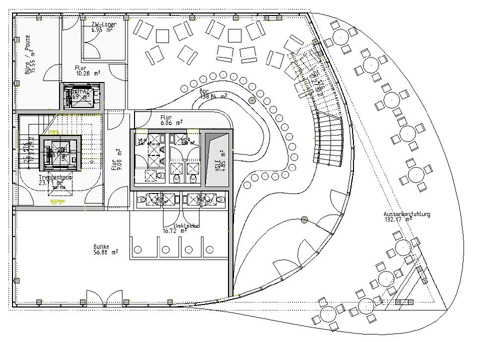
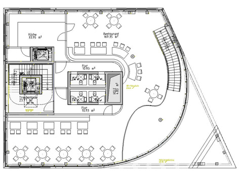
R A U M F L U S S Die unteren Etagen, welche eine Gastronomie und eine Butike enthalten, unterscheiden sich von den Bürogrundrissen der aufgehenden Etagen grundsätzlich. Statt orthogonaler Optimierung einer Büroorganisation, herrscht hier im Innenraum freier Formenfluss, der seinen Ursprung in städtebaulichen Überlegungen hat. Der teils zweigeschossige Raum enthält einen rund geformten Treppenaufgang in die zweite Ebene. Die Galeriebrüstung der oberen Ebene ist wellenhaft geformt. Die Gestaltung von Theke und Sitzmobiliar passt sich den runden Formen an. |





